Rif: LAB0X23
MILANO
MILANO | - zona Pasteur € 90.000- Magazzino
- Vendita
- 43 Mq
- EPI: Non disp.
- Classe energetica: Non indicata
- Descrizione
- Dettaglio immobile
- Consistenze
- Mappa
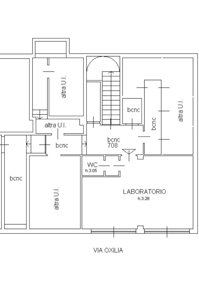
- Planimetrie
In via Nino Oxilia 23, al centro di NOLO, a 300 metri dalla metropolitana M1 Pasteur e a pochissima distanza da piazza Morbegno, VENDESI laboratorio di mq. 43 al piano seminterrato.
L'immobile si inserisce in un ottimo palazzo a destinazione principalmente residenziale e molto ben abitato.
Si compone di un unico ambiente open space con bagno ed antibagno, ideale per chi ha bisogno di un luogo comodo dove organizzare il proprio lavoro, stoccare materiali o avviare un'attività artigianale.
Il laboratorio è ben strutturato: i soffitti alti e le grandi finestre permettono di lavorare in un contesto luminoso e arioso.
Situato in uno dei più famosi quartieri della città per la quantità e la varietà di negozi, supermercati, farmacie, locali, ristoranti, banche.
Il quartiere NOLO é giovane e vivace, tra i quartieri più gettonati della città.
E' servitissimo, strategicamente posizionato a pochi minuti a piedi da Piazzale Loreto e da Corso Buenos Aires. Nelle immediate vicinanze si trovano la MM1 (Pasteur e Loreto) le MM2/MM3 (Caiazzo e Centrale) e svariati mezzi di superficie (tram e bus). La Stazione Centrale dista solo 800 metri e garantisce tutti i collegamenti fuori città, compresi i tragitti per gli aeroporti.
Prezzo richiesto euro 90.000.
Per informazioni e visite: Deborah Cabra cell 339/1964912 - Corso Buenos Aires 9 (MI).
L'immobile si inserisce in un ottimo palazzo a destinazione principalmente residenziale e molto ben abitato.
Si compone di un unico ambiente open space con bagno ed antibagno, ideale per chi ha bisogno di un luogo comodo dove organizzare il proprio lavoro, stoccare materiali o avviare un'attività artigianale.
Il laboratorio è ben strutturato: i soffitti alti e le grandi finestre permettono di lavorare in un contesto luminoso e arioso.
Situato in uno dei più famosi quartieri della città per la quantità e la varietà di negozi, supermercati, farmacie, locali, ristoranti, banche.
Il quartiere NOLO é giovane e vivace, tra i quartieri più gettonati della città.
E' servitissimo, strategicamente posizionato a pochi minuti a piedi da Piazzale Loreto e da Corso Buenos Aires. Nelle immediate vicinanze si trovano la MM1 (Pasteur e Loreto) le MM2/MM3 (Caiazzo e Centrale) e svariati mezzi di superficie (tram e bus). La Stazione Centrale dista solo 800 metri e garantisce tutti i collegamenti fuori città, compresi i tragitti per gli aeroporti.
Prezzo richiesto euro 90.000.
Per informazioni e visite: Deborah Cabra cell 339/1964912 - Corso Buenos Aires 9 (MI).
Contratto Vendita
Rif LAB0X23
Prezzo € 90.000
Provincia Milano
Comune Milano
Zona - Zona Pasteur
Indirizzo Via Nino Oxilia 23">
Classe energetica
Non indicata
Condizioni ottime condizioni
| Descrizione | Superficie | Sup. comm. |
|---|---|---|
| Principali | ||
| Laboratorio - seminterrato | 43 Mq | 43 Mqc |
| Totale | 43 Mqc | |
Zoom della mappa
Apri con:
Apple Maps
Google Maps
Waze
Apri la mappa








